
【 佐伯区隅の浜二丁目 】
\ 新物件情報 /





広島市佐伯区隅の浜二丁目に新築一戸建てと建築条件なし土地分譲が販売中です!!
№1 新築一戸建て


1階間取図

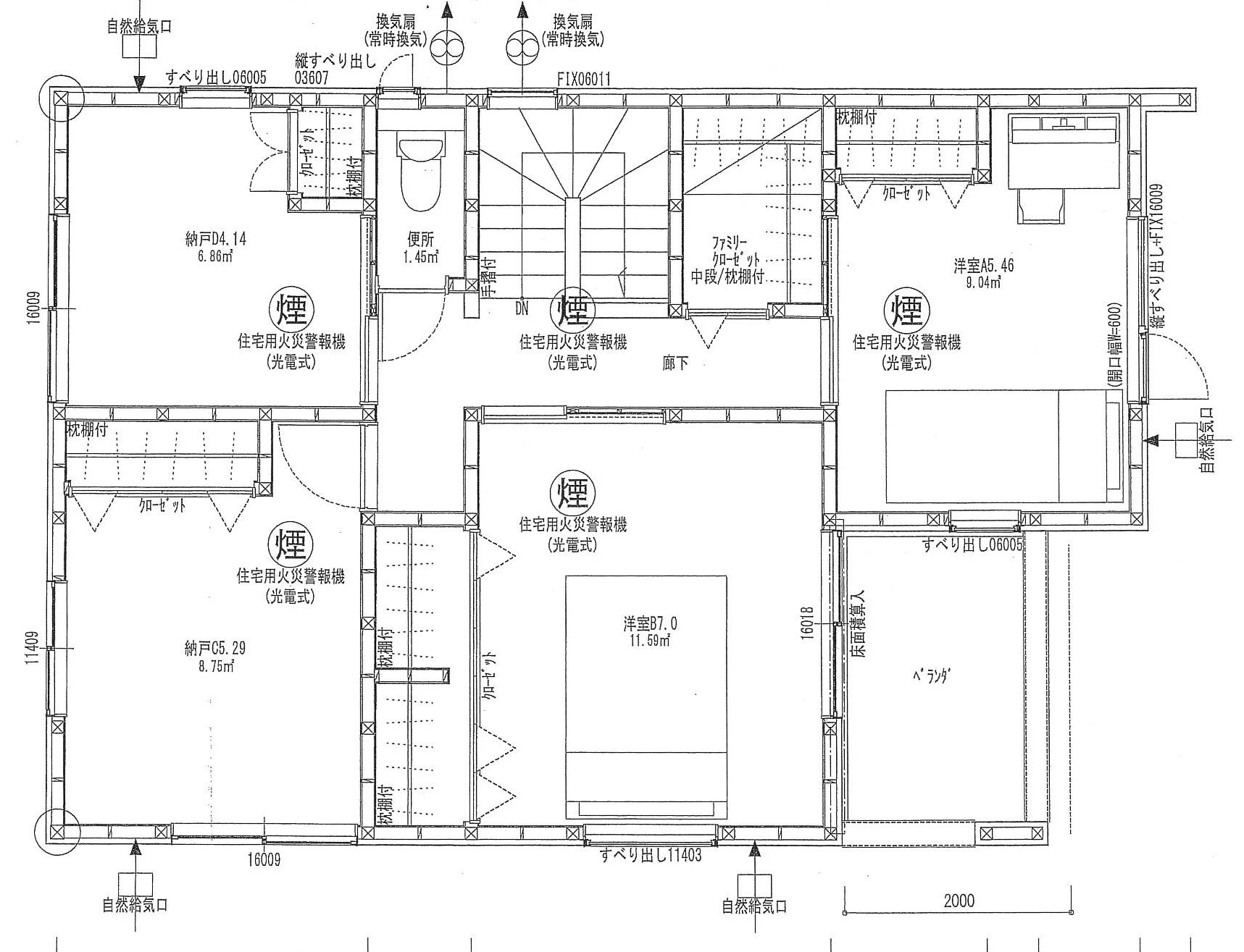
2階間取り図
土地:120.76㎡(36.52坪)
セットバック後の土地:119.61㎡(36.18坪)
建物:107.23㎡(32.43坪)
駐車3台可(車種による)
建築確認番号:第R07認広建セ00868号
完成予定年月日:令和8年4月下旬
な、な、な・ん・と!!
海老園、隅の浜分譲からウルトラファインバブル給湯器が設置されます!!!
家中のお湯がウルトラファインバブルになるメリットは、
・肌の化粧品付着量30%減少
・毛髪光沢度33%増加
・排水管汚れ残存率減少 などなど、、、 家に欲しい設備です!!(笑)
この建物は、ZEH水準省エネ住宅になります。
カップボード、食洗機、乾太くん、エコカラット(リビングTV壁面)、宅配ボックス
SIC、WIC、ファミリークローク なども標準設備です!!
最強設備となっていますね!!(笑)
№2 建築条件なし土地

土地120.76㎡(36.52坪)
セットバック後の土地:119.53㎡(36.15坪)
更地、給排水引込み済みです。
№3 建築条件なし土地

土地:121.01㎡(36.60坪)
セットバック後の土地:119.75㎡(36.22坪)
更地、給排水引込み済みです!
<全区画詳細>
用途地域:第1種住居 建蔽率60%、容積率200%(№1・№2)、近隣商業 建蔽率80%、容積率300%(№1・№2・№3)
公営水道、都市ガス、公共下水、公道 西 約3.6m、学区 楽々園小学校・五日市南中学校
近くにイオンタウンや医療ビルやコンビニもある為、住みやすい地域となっています!!
気になる方は、お早めにお問い合わせください!!


