西区井口四丁目 №36312

3,880万円

広島県広島市西区井口4丁目

広島電鉄宮島線「修大協創中高前」駅徒歩15分

山陽本線「五日市」駅徒歩20分

広電「井口4丁目」バス停

価格
3,880万円
間取り
4LDK
土地面積
104.10㎡
所在地
広島県広島市西区井口4丁目
交通

広島電鉄宮島線修大協創中高前」駅 徒歩15分

山陽本線五日市」駅 徒歩20分

広電「井口4丁目」バス停下車 徒歩2分

建物面積
94.01㎡
築年月
2024年1月(新築)

物件の特徴

  • TVモニタ付きインターホン

  • カウンターキッチン

セールスポイント

家事導線の良いLDKは、18.2帖の広々空間。
家族とコミュニケーションも取りやすい対面キッチン。
2階居室は、勉強や趣味・のんびりしたりと
プライベート空間としても活用できます

ポイント

南向きで前面道路も広く 駐車が苦手な奥様も落ちついて停める事ができます

担当者のコメント

酒松 愛美

『西区』『佐伯区』『廿日市市』の土地・新築一戸建てをお探しなら、
地元密着の愛建ハウジングにお任せ下さい。
ネットに掲載されていない物件も提供させて頂きます。

基本情報

販売戸数
-
総戸数
-
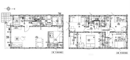
間取り / 詳細
4LDK
LDK 18.2帖/洋室 6.0帖/洋室 5.1帖/洋室 4.5帖/洋室 4.5帖
向き
建物面積(坪数)
94.01㎡(28.43坪)
土地面積(坪数)
104.10㎡(31.49坪)
建ぺい率 /
容積率
60%/200%
築年月
2024年1月(新築)
駐車場 /
月額料金
有(2台) -
土地権利
所有権
土地
(敷金 / 保証金)
- / -
建物構造
木造 / 2階建
傾斜地部分面積
-
路地状敷地
-
私道負担面積
-
セットバック
高圧線下面積
-
施工会社
-
用途地域
第一種住居
地目 / 地勢
宅地 / 高台
接道状況
一方(南 公道 6.2m)
国土法届出要否
不要
都市計画
市街化区域
総区画数 /
販売区画数
-/-
現況
完成済み
その他
法令上の制限
-
取引態様
一般媒介
引渡し
即時
取引条件の
有効期限
2025年11月25日

設備条件

設備条件
  • 陽当り良好 / 閑静な住宅地 / 都市ガス / 公営水道 / 公共下水 / 駐車2台可 / システムキッチン / カウンターキッチン / トイレ2ヶ所 / 浴室1坪以上 / 床下収納 / TVモニタ付インターホン / 複層ガラス
設備(その他)
    -

その他

物件番号
89953132
管理コード
36312
建築確認番号
-
情報更新日
2025年11月11日
次回更新予定日
2025年11月25日

支払いシミュレーション

月々の支払額
9.6
購入希望物件価格
万円
頭金
万円
金利
%
返済額(ボーナス1回分)
万円
返済期間

※ボーナスは自動で年2回分で計算されます。

近隣の物件

  1. 西区古江東町 №35749

    広島市西区古江東町

    4LDK (100.60㎡)

    4,280万円

  2. 西区井口四丁目 №35784

    広島市西区井口4丁目

    2SLDK (100.45㎡)

    4,100万円

  3. 西区山田新町一丁目 №35775

    広島市西区山田新町1丁目

    4LDK (115.51㎡)

    3,696万円

  4. 西区古江西町 №35473

    広島市西区古江西町

    3LDK (99.63㎡)

    4,290万円

西区井口四丁目 №36312

西区井口四丁目 №36312

3,880万円

-

4LDK(94.01㎡)

お気軽にお問い合わせください

LINEからお問い合わせ 無料お問い合わせ

株式会社愛建ハウジング

082-942-6370

9:00~17:00

(休:日・祝)