佐伯区八幡一丁目 №34992

2,980万円

広島県広島市佐伯区八幡1丁目

山陽本線「五日市」駅徒歩38分

広電「保井田」バス停

価格
2,980万円
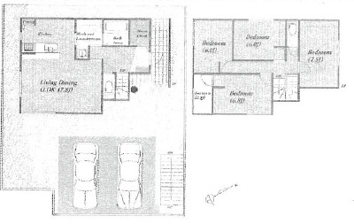
間取り
3LDK
土地面積
134.98㎡
所在地
広島県広島市佐伯区八幡1丁目
交通

山陽本線五日市」駅 徒歩38分

広電「保井田」バス停下車 徒歩8分

建物面積
100.19㎡
築年月
2024年3月(新築)

物件の特徴

  • TVモニタ付きインターホン

  • カウンターキッチン

セールスポイント

居室は全フローリング
LDKの隣にはタタミコーナーあります。
子供のお昼寝や、洗濯物をたたんだり便利です。
水回りが集約し、家事で忙しいお母さんも最短で動けます!

ポイント

収納豊富 2階の小屋裏物入は季節物の収納などたっぷり入ります。

担当者のコメント

酒松 愛美

『西区』『佐伯区』『廿日市市』の土地・新築一戸建てをお探しなら、
地元密着の愛建ハウジングにお任せ下さい。
ネットに掲載されていない物件も提供させて頂きます。

基本情報

販売戸数
-
総戸数
-
間取り / 詳細
3LDK
LDK 17.7帖/洋室 7.0帖/洋室 5.2帖/洋室 5.2帖
向き
建物面積(坪数)
100.19㎡(30.3坪)
土地面積(坪数)
134.98㎡(40.83坪)
建ぺい率 /
容積率
60%/200%
築年月
2024年3月(新築)
駐車場 / 月額
有 / -
土地権利
所有権
土地
(敷金 / 保証金)
- / -
建物構造
木造 / 2階建
傾斜地部分面積
-
路地状敷地
-
私道負担面積
-
セットバック
要 2.42㎡
高圧線下面積
-
施工会社
-
用途地域
第一種住居
地目 / 地勢
宅地 / 平坦
接道状況
-(東 3.2m)(西 6.2m)
国土法届出要否
不要
都市計画
市街化区域
総区画数 /
販売区画数
-/-
現況
完成済み
その他
法令上の制限
-
取引態様
一般媒介
引渡し
即時
取引条件の
有効期限
2026年04月27日

設備条件

設備条件
  • 閑静な住宅地 / ルーフバルコニー / 都市ガス / 公営水道 / 公共下水 / システムキッチン / カウンターキッチン / 温水洗浄便座 / トイレ2ヶ所 / 床下収納 / ウォークインクロゼット / 屋根裏収納 / TVモニタ付インターホン / 宅配ボックス / 複層ガラス
設備(その他)
    -

その他

物件番号
90431248
管理コード
34992
建築確認番号
第R05認広建セ01268号
情報更新日
2026年04月13日
次回更新予定日
2026年04月27日
取扱会社
  • 株式会社愛建ハウジング
  • 広島県広島市佐伯区楽々園5丁目25-8 1階 
  • TEL:082-942-6370
  • 広島県知事 (1) 第11172号
  • 公益社団法人 全国宅地建物取引業保証協会

周辺施設

  • 広島銀行の画像

    銀行

    広島銀行

    492m(7分)

  • 広島市植物公園の画像

    公園

    広島市植物公園

    1655m(21分)

  • エディオンの画像

    家電製品

    エディオン

    2312m(29分)

支払いシミュレーション

月々の支払額

※実際の金額と異なる場合があります。

購入希望物件価格
万円
頭金
万円
金利
%
返済額(ボーナス1回分)
万円
返済期間

※ボーナスは自動で年2回分で計算されます。

近隣の物件

  1. 佐伯区三宅3丁目 №36528

    広島市佐伯区三宅3丁目

    4LDK (104.33㎡)

    3,298万円

  2. 佐伯区五日市町大字昭和台 №36520

    広島市佐伯区五日市町大字昭和台

    4LDK (105.16㎡)

    4,095万円

  3. 佐伯区皆賀2丁目 №36519

    広島市佐伯区皆賀2丁目

    4LDK (106.81㎡)

    4,982万円

  4. 佐伯区千同一丁目 №35271

    広島市佐伯区千同1丁目

    3SLDK (108.47㎡)

    3,380万円

よく見られている物件

  1. マ・メゾン 廿日市市宮園上5丁目 №100

    廿日市市宮園上5丁目

    3LDK (90.67㎡)

    3,980万円

  2. マ・メゾン 佐伯区海老園3丁目 №102

    広島市佐伯区海老園3丁目

    2LDK+2S(納戸) (105.16㎡)

    5,080万円

  3. マ・メゾン 廿日市市四季が丘八丁目 №99

    廿日市市四季が丘8丁目

    4LDK (116.33㎡)

    2,980万円

  4. マ・メゾン 佐伯区隅の浜2丁目 №119

    広島市佐伯区隅の浜2丁目

    3LDK+S(納戸) (107.23㎡)

    4,580万円

佐伯区八幡一丁目 №34992

佐伯区八幡一丁目 №34992

2,980万円

-

3LDK(100.19㎡)

お気軽にお問い合わせください

LINEからお問い合わせ 無料お問い合わせ

株式会社愛建ハウジング

082-942-6370

9:00~17:00

(休:日・祝)