佐伯区皆賀1丁目 №35914

4,980万円

広島県広島市佐伯区皆賀1丁目

広島電鉄宮島線「修大協創中高前」駅徒歩12分

価格
4,980万円
間取り
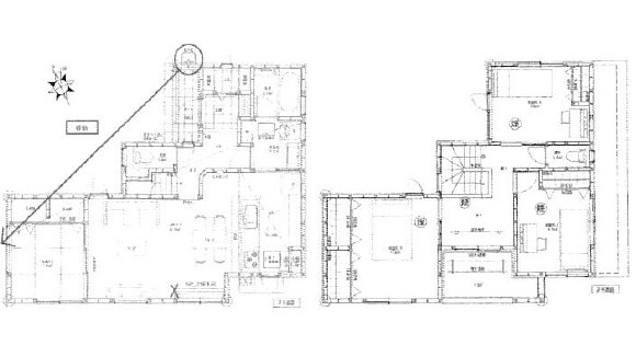
4LDK
土地面積
149.70㎡
所在地
広島県広島市佐伯区皆賀1丁目
交通

広島電鉄宮島線修大協創中高前」駅 徒歩12分

建物面積
104.33㎡
築年月
2025年1月(新築)

物件の特徴

  • TVモニタ付きインターホン

  • カウンターキッチン

  • 浴室乾燥機

セールスポイント

敷地ゆったり・日当たり良好な物件です。
カップボード・シューズインクローク・全居室クローゼット付きで収納力抜群。
都市ガスのエネファーム採用 
小学校徒歩圏、バス停徒歩7分と利便性も良好です。

ポイント

LDK15帖以上  全居室収納TVモニタ付 インターホン 省エネ給湯器 フラット35Sに対応  複層ガラス

担当者のコメント

酒松 愛美

『西区』『佐伯区』『廿日市市』の土地・新築一戸建てをお探しなら、
地元密着の愛建ハウジングにお任せ下さい。
ネットに掲載されていない物件も提供させて頂きます。

基本情報

販売戸数
-
総戸数
-
間取り / 詳細
4LDK
LDK 17.5帖/和室 4.5帖/洋室 7.0帖/洋室 5.4帖/洋室 5.2帖
向き
建物面積(坪数)
104.33㎡(31.55坪)
土地面積(坪数)
149.70㎡(45.28坪)
建ぺい率 /
容積率
60%/200%
築年月
2025年1月(新築)
土地権利
所有権
土地
(敷金 / 保証金)
- / -
建物構造
木造 / 2階建
傾斜地部分面積
-
路地状敷地
-
私道負担面積
-
セットバック
高圧線下面積
-
施工会社
-
用途地域
第二種中高層住居専用
地目 / 地勢
宅地 / -
接道状況
一方(北西 私道 5.2m)
国土法届出要否
不要
都市計画
市街化区域
総区画数 /
販売区画数
-/-
現況
完成済み
その他
法令上の制限
-
取引態様
一般媒介
引渡し
即時
取引条件の
有効期限
2026年04月27日

設備条件

設備条件
  • 陽当り良好 / 閑静な住宅地 / 都市ガス / 公営水道 / 公共下水 / 駐車2台可 / 食器洗い乾燥機 / システムキッチン / カウンターキッチン / 浴室乾燥機 / 温水洗浄便座 / トイレ2ヶ所 / 床下収納 / TVモニタ付インターホン / 宅配ボックス / 複層ガラス
設備(その他)
    -

その他

物件番号
96182783
管理コード
35914
建築確認番号
第R06認広建セ01128号
情報更新日
2026年04月13日
次回更新予定日
2026年04月27日
取扱会社
  • 株式会社愛建ハウジング
  • 広島県広島市佐伯区楽々園5丁目25-8 1階 
  • TEL:082-942-6370
  • 広島県知事 (1) 第11172号
  • 公益社団法人 全国宅地建物取引業保証協会

周辺施設

  • 五日市中学校の画像

    中学校

    五日市中学校

    1965m(25分)

  • エディオンの画像

    家電製品

    エディオン

    2201m(28分)

支払いシミュレーション

月々の支払額

※実際の金額と異なる場合があります。

購入希望物件価格
万円
頭金
万円
金利
%
返済額(ボーナス1回分)
万円
返済期間

※ボーナスは自動で年2回分で計算されます。

近隣の物件

  1. 佐伯区三宅3丁目 №36528

    広島市佐伯区三宅3丁目

    4LDK (104.33㎡)

    3,298万円

  2. 佐伯区五日市町大字昭和台 №36520

    広島市佐伯区五日市町大字昭和台

    4LDK (105.16㎡)

    4,095万円

  3. 佐伯区皆賀2丁目 №36519

    広島市佐伯区皆賀2丁目

    4LDK (106.81㎡)

    4,982万円

  4. 佐伯区千同一丁目 №35271

    広島市佐伯区千同1丁目

    3SLDK (108.47㎡)

    3,380万円

よく見られている物件

  1. マ・メゾン 廿日市市宮園上5丁目 №100

    廿日市市宮園上5丁目

    3LDK (90.67㎡)

    3,980万円

  2. マ・メゾン 佐伯区海老園3丁目 №102

    広島市佐伯区海老園3丁目

    2LDK+2S(納戸) (105.16㎡)

    5,080万円

  3. マ・メゾン 廿日市市四季が丘八丁目 №99

    廿日市市四季が丘8丁目

    4LDK (116.33㎡)

    2,980万円

  4. マ・メゾン 佐伯区隅の浜2丁目 №119

    広島市佐伯区隅の浜2丁目

    3LDK+S(納戸) (107.23㎡)

    4,580万円

佐伯区皆賀1丁目 №35914

佐伯区皆賀1丁目 №35914

4,980万円

-

4LDK(104.33㎡)

お気軽にお問い合わせください

LINEからお問い合わせ 無料お問い合わせ

株式会社愛建ハウジング

082-942-6370

9:00~17:00

(休:日・祝)