廿日市市福面2丁目 №35849

2,990万円

広島県廿日市市福面2丁目

山陽本線「宮島口」駅徒歩17分

価格
2,990万円
間取り
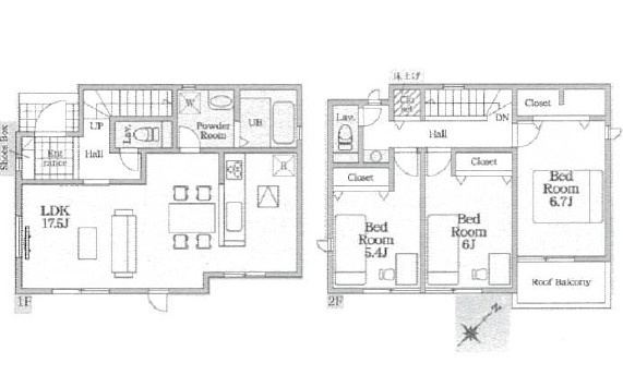
3LDK
土地面積
130.37㎡
所在地
広島県廿日市市福面2丁目
交通

山陽本線宮島口」駅 徒歩17分

建物面積
89.85㎡
築年月
2025年8月(新築)

物件の特徴

  • TVモニタ付きインターホン

  • カウンターキッチン

  • 浴室乾燥機

セールスポイント

耐震等級3&断熱等級6の高性能住宅!
LDK17.5帖・全居室収納付きで使い勝手◎
浴室乾燥機や宅配ボックスなど、設備充実が充実しています。
駐車場2台可能で暮らしやすい住環境です。

ポイント

高断熱住宅 耐震構造  設計住宅性能評価付 浴室乾燥機 建設住宅性能評価付 宅配ボックス ウォークインクローゼット

担当者のコメント

酒松 愛美

『西区』『佐伯区』『廿日市市』の土地・新築一戸建てをお探しなら、
地元密着の愛建ハウジングにお任せ下さい。
ネットに掲載されていない物件も提供させて頂きます。

基本情報

販売戸数
-
総戸数
-
間取り / 詳細
3LDK
LDK 17.5帖/洋室 6.7帖/洋室 6.0帖/洋室 5.4帖
向き
北西
建物面積(坪数)
89.85㎡(27.17坪)
土地面積(坪数)
130.37㎡(39.43坪)
建ぺい率 /
容積率
50%/80%
築年月
2025年8月(新築)
駐車場 / 月額
有 / -
土地権利
所有権
土地
(敷金 / 保証金)
- / -
建物構造
木造 / 2階建
傾斜地部分面積
-
路地状敷地
-
私道負担面積
-
セットバック
高圧線下面積
-
施工会社
-
用途地域
第一種低層住居専用
地目 / 地勢
宅地 / 高台
接道状況
一方(北西 公道 6.1m)
国土法届出要否
不要
都市計画
市街化区域
総区画数 /
販売区画数
-/-
現況
完成済み
その他
法令上の制限
-
取引態様
一般媒介
引渡し
即時
取引条件の
有効期限
2026年04月27日

設備条件

設備条件
  • 陽当り良好 / 閑静な住宅地 / 建設住宅性能評価書付 / ルーフバルコニー / プロパンガス / 公営水道 / 公共下水 / 駐車2台可 / 耐震構造 / システムキッチン / カウンターキッチン / 浴室乾燥機 / 温水洗浄便座 / トイレ2ヶ所 / 床下収納 / ウォークインクロゼット / TVモニタ付インターホン / 宅配ボックス / 複層ガラス
設備(その他)
    -

その他

物件番号
95742929
管理コード
35849
建築確認番号
第R07SHC107129号
情報更新日
2026年04月13日
次回更新予定日
2026年04月27日
取扱会社
  • 株式会社愛建ハウジング
  • 広島県広島市佐伯区楽々園5丁目25-8 1階 
  • TEL:082-942-6370
  • 広島県知事 (1) 第11172号
  • 公益社団法人 全国宅地建物取引業保証協会

周辺施設

  • ガストの画像

    ファミリーレストラン

    ガスト

    1778m(23分)

  • 大野東中学校の画像

    中学校

    大野東中学校

    1907m(24分)

支払いシミュレーション

月々の支払額

※実際の金額と異なる場合があります。

購入希望物件価格
万円
頭金
万円
金利
%
返済額(ボーナス1回分)
万円
返済期間

※ボーナスは自動で年2回分で計算されます。

近隣の物件

  1. 廿日市市大野1丁目 №36042

    廿日市市大野1丁目

    4LDK (106.82㎡)

    4,290万円

  2. 廿日市市宮島口西3丁目 №36005

    廿日市市宮島口西3丁目

    3LDK (97.75㎡)

    3,180万円

  3. 廿日市市福面2丁目 №36244

    廿日市市福面2丁目

    4LDK (89.55㎡)

    2,798万円

  4. 廿日市市串戸4丁目 №35937

    廿日市市串戸4丁目

    4LDK (99.36㎡)

    4,490万円

よく見られている物件

  1. マ・メゾン 廿日市市宮園上5丁目 №100

    廿日市市宮園上5丁目

    3LDK (90.67㎡)

    3,980万円

  2. マ・メゾン 佐伯区海老園3丁目 №102

    広島市佐伯区海老園3丁目

    2LDK+2S(納戸) (105.16㎡)

    5,080万円

  3. マ・メゾン 廿日市市四季が丘八丁目 №99

    廿日市市四季が丘8丁目

    4LDK (116.33㎡)

    2,980万円

  4. マ・メゾン 佐伯区隅の浜2丁目 №119

    広島市佐伯区隅の浜2丁目

    3LDK+S(納戸) (107.23㎡)

    4,580万円

廿日市市福面2丁目 №35849

廿日市市福面2丁目 №35849

2,990万円

-

3LDK(89.85㎡)

お気軽にお問い合わせください

LINEからお問い合わせ 無料お問い合わせ

株式会社愛建ハウジング

082-942-6370

9:00~17:00

(休:日・祝)