佐伯区八幡東2丁目 №35855

2,898万円

広島県広島市佐伯区八幡東2丁目

山陽本線「五日市」駅徒歩40分

価格
2,898万円
間取り
4LDK
土地面積
91.82㎡
所在地
広島県広島市佐伯区八幡東2丁目
交通

山陽本線五日市」駅 徒歩40分

建物面積
100.00㎡
築年月
2025年2月(新築)

物件の特徴

  • TVモニタ付きインターホン

  • カウンターキッチン

  • 浴室乾燥機

セールスポイント

洗面に物干しスペース完備で家事導線◎
バス停まで徒歩3分と交通利便性も抜群です。
周辺にはスーパー、病院、公園、学校が揃い、
子育て世代からシニア世代まで安心して暮らせる環境です。

ポイント

温水洗浄便座 シューズボックス トイレ2ヶ所 エコジョーズ 複層ガラス 浴室乾燥機 フローリング LDK15帖以上 パントリー

担当者のコメント

酒松 愛美

『西区』『佐伯区』『廿日市市』の土地・新築一戸建てをお探しなら、
地元密着の愛建ハウジングにお任せ下さい。
ネットに掲載されていない物件も提供させて頂きます。

基本情報

販売戸数
-
総戸数
-
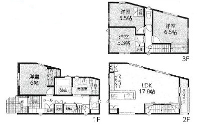
間取り / 詳細
4LDK
LDK 17.8帖/洋室 6.0帖/洋室 6.5帖/洋室 5.5帖/洋室 5.3帖
向き
-
建物面積(坪数)
100.00㎡(30.25坪)
土地面積(坪数)
91.82㎡(27.77坪)
建ぺい率 /
容積率
60%/160%
築年月
2025年2月(新築)
駐車場 / 月額
有(3台) / -
土地権利
所有権
土地
(敷金 / 保証金)
- / -
建物構造
木造 / 3階建
傾斜地部分面積
-
路地状敷地
-
私道負担面積
-
セットバック
高圧線下面積
-
施工会社
-
用途地域
第二種中高層住居専用
地目 / 地勢
宅地 / -
接道状況
一方(西 4.0m)
国土法届出要否
不要
都市計画
市街化区域
総区画数 /
販売区画数
-/-
現況
完成済み
その他
法令上の制限
-
取引態様
一般媒介
引渡し
即時
取引条件の
有効期限
2026年03月23日

設備条件

設備条件
  • 都市ガス / 公共下水 / 駐車3台可 / システムキッチン / カウンターキッチン / 浴室乾燥機 / 温水洗浄便座 / トイレ2ヶ所 / TVモニタ付インターホン / 複層ガラス
設備(その他)
    -

その他

物件番号
101002389
管理コード
35855
建築確認番号
第R06認広建セ00251号
情報更新日
2026年03月09日
次回更新予定日
2026年03月23日
取扱会社
  • 株式会社愛建ハウジング
  • 広島県広島市佐伯区楽々園5丁目25-8 1階 
  • TEL:082-942-6370
  • 広島県知事 (1) 第11172号
  • 公益社団法人 全国宅地建物取引業保証協会

周辺施設

  • アルゾの画像

    スーパー

    アルゾ

    749m(10分)

  • 広島銀行の画像

    銀行

    広島銀行

    1157m(15分)

支払いシミュレーション

月々の支払額
購入希望物件価格
万円
頭金
万円
金利
%
返済額(ボーナス1回分)
万円
返済期間

※ボーナスは自動で年2回分で計算されます。

近隣の物件

  1. 佐伯区千同一丁目 №35274

    広島市佐伯区千同1丁目

    4LDK (111.78㎡)

    3,380万円

  2. 佐伯区千同一丁目 №35272

    広島市佐伯区千同1丁目

    4LDK (108.33㎡)

    3,340万円

  3. 佐伯区千同一丁目 №35273

    広島市佐伯区千同1丁目

    4LDK (97.70㎡)

    3,240万円

  4. 佐伯区八幡東2丁目 №35857

    広島市佐伯区八幡東2丁目

    4LDK (102.60㎡)

    3,198万円

よく見られている物件

  1. マ・メゾン 廿日市市宮園上5丁目 №100

    廿日市市宮園上5丁目

    3LDK (90.67㎡)

    3,980万円

  2. マ・メゾン 佐伯区海老園3丁目 №102

    広島市佐伯区海老園3丁目

    2LDK+2S(納戸) (105.16㎡)

    5,180万円

  3. マ・メゾン 廿日市市四季が丘八丁目 №99

    廿日市市四季が丘8丁目

    4LDK (116.33㎡)

    2,980万円

  4. マ・メゾン 佐伯区隅の浜2丁目 №119

    広島市佐伯区隅の浜2丁目

    3LDK+S(納戸) (107.23㎡)

    4,580万円

佐伯区八幡東2丁目 №35855

佐伯区八幡東2丁目 №35855

2,898万円

-

4LDK(100.00㎡)

お気軽にお問い合わせください

LINEからお問い合わせ 無料お問い合わせ

株式会社愛建ハウジング

082-942-6370

9:00~17:00

(休:日・祝)