マ・メゾン 佐伯区隅の浜2丁目 №121

2,580万円

広島県広島市佐伯区隅の浜2丁目

広島電鉄宮島線「楽々園」駅徒歩11分

山陽本線「廿日市」駅徒歩16分

価格
2,580万円
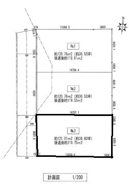
土地面積(坪数)
119.75㎡(36.22坪)
所在地
広島県広島市佐伯区隅の浜2丁目
築年
-(-)
駐車
-
交通

広島電鉄宮島線楽々園」駅 徒歩11分

山陽本線廿日市」駅 徒歩16分

マ・メゾン 佐伯区隅の浜2丁目 №121の基本情報

物件名
マ・メゾン 佐伯区隅の浜2丁目 №121
価格
2,580万円
土地面積
119.75㎡
築年月
-(-)
総区画数
-
所在地
広島県広島市佐伯区隅の浜2丁目
交通

広島電鉄宮島線楽々園」駅 徒歩11分

山陽本線廿日市」駅 徒歩16分

マ・メゾン 佐伯区隅の浜2丁目 №121の詳細情報

設備条件
設備(その他)
    -
駐車場/月額
-/-
土地権利
所有権
国土法届出
不要
用途地域
第一種住居
区画数
- / -
管理形態
-
管理員の勤務形態
-
管理会社
-
取引態様
専任媒介
引渡し
相談

マ・メゾン 佐伯区隅の浜2丁目 №121で募集中の物件

  1. 36.22坪 (119.75㎡)

    2,580万円(71.23万円/坪)

周辺施設

  • ヤマダ電機の画像

    家電製品

    ヤマダ電機

    704m(9分)

  • 広島銀行 五日市支店の画像

    銀行

    広島銀行 五日市支店

    781m(10分)

  • イオンタウン楽々園の画像

    その他

    イオンタウン楽々園

    1005m(13分)

近隣の物件

  1. 広島市佐伯区隅の浜2丁目

    - (119.53㎡)

    2,480万円

マ・メゾン 佐伯区隅の浜2丁目 №121

お気軽にお問い合わせください

LINEからお問い合わせ 無料お問い合わせ

株式会社愛建ハウジング

082-942-6370

9:00~17:00

(休:日・祝)